/
/

Silver

Silver

TIPOLOGÍA

Comercio.

LOCALIZACIÓN

Bizkaia.

AREA

215,90 m2

AÑO

-

Dejando a un lado los acabados ostentosos, los accesorios superfluos y el bombardeo de estímulos, Silver vuelve a lo sencillo y a lo esencial mediante los materiales puros. Apaga todos los focos para resaltar el elemento vital del espacio, y trae la calma a una actividad llena de movimiento.
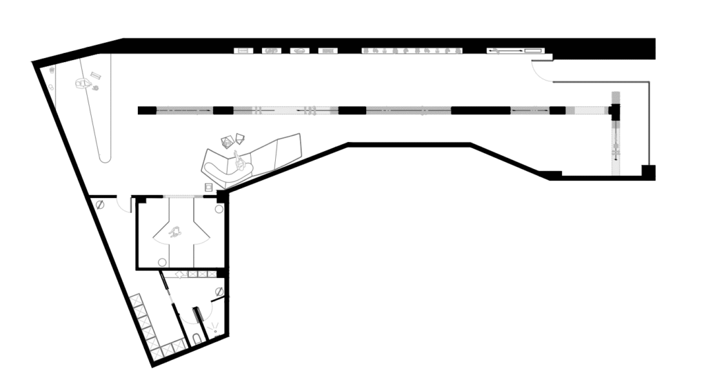
PLANTA

PLANTA
Recepción / Área de exposición / Área de descanso / Mostrador / Vestuarios públicos / Vestuario privado / Almacén

DOSSIER ESTÉTICO
FORMAS IMPERFECTAS
FORMAS IMPERFECTAS
piedra
MATERIAL PURO
MATERIAL PURO
microcemento
MINIMAL
MINIMAL
cromo
CONTRASTE
CONTRASTE
negro
ESTANCIAS
-
-
-
-
-
-
-
 -
 -
 -
 -
 -
 -
 -
Slide 1
Slide 1
Slide 2
Slide 2
Slide 3
Slide 3
Slide 4
Slide 4
Slide 5
Slide 5
Slide 6
Slide 6
Slide 7
Slide 7
× Zoomed image